効率よく配置されている各諸室。しかし、廊下スペースは通り抜けるため「だけ」にしか利用されていません。また、キッチンと浴室により分断された部屋はもっと明るく開放的な使い方が出来そうです。
・必要な各スペースの広さを調整する。
・閉鎖的なスペース( プライベート空間) を片側に寄せる。
・開放的な空間は逆側にドーンと配置。
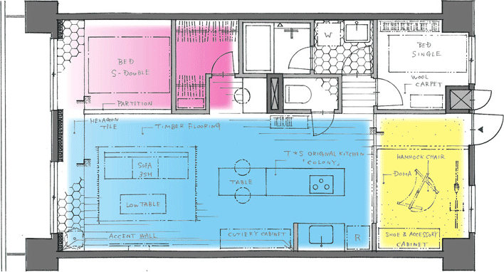
エントランスからバルコニーまでを支配するグランドスペース。ユーティリティは片寄にして通り抜けるためだけの無駄な廊下を排することによって、贅沢な自由空間を堪能できます。


-

独立性を保ちながら緩くつながりあう、18畳もの広いLDK 空間。 -

ウォークインクローゼットと隣接したマスターベッドルーム。 -

自転車にアウトドア用品。玄関とひとつながりのアトリエスペース+大型収納。




















